來源:遠東泵業 發布日期
2020-07-21 16:16 瀏覽:-本實用新型高粘度樹脂輸送泵涉及石英石板加工領域,特別是一種用于生產石英石板材的樹脂混合配料生產線。
石英石板是一種裝飾板材,石英石板是一種合成板材,在加工過程中,在樹脂材料中加入石英石,使板材具有了大理石的效果。
石英石板的的厚度和面積都會有一定的要求,統一批次的石英石板材在規格上需要有一致性,所以使用多少的石英石、樹脂和沙料等原料,都需按照比例混合,然后后制成制板的漿料。
目前的稱量方式采用的使人工稱量傾倒的方式,這種方式需要工作人員付出一定的勞動,本申請提出一種方案,將現有技術進行合理的結合,能有效的減少工作人員的工作量,提高工作效率。

技術實現要素:
針對上述缺陷,本實用新型的目的在于提出一種用于生產石英石板材的樹脂混合配料生產線,該裝置能有效的減少工作人員的工作量,提高工作效率。
為達此目的,本實用新型采用以下技術方案:
一種用于生產石英石板材的樹脂混合配料生產線,包括支撐架,還包括天車、電葫蘆、上料料斗、原料定量裝置和制漿系統;
所述原料定量裝置的兩側分別設有支撐架,所述天車的兩端分別滑動安裝于兩側的支撐架,所述支撐架的頂端設有導軌;
所述電葫蘆滑動安裝于所述天車,所述上料料斗固定于所述電葫蘆的繩索;
所述天車沿X軸方向線性移動,所述電葫蘆沿Y方向線性移動;
所述原料定量裝置的頂部為載料罐,所述載料罐頂部設有進料口,所述原料定量裝置設有多個,多個所述原料定量裝置下方設有輸送帶,所述輸送帶的出料端連接與所述制漿系統;
所述制漿系統設置于所述支撐架的側面,所述制漿系統包括樹脂輸送裝置,所述樹脂輸送裝置將樹脂輸送到制漿系統;
所述原料定量裝置設置于所述抑塵房中,所述載料罐的上部穿過抑塵房的頂部。
較佳地,所述抑塵房包括房體、軟門簾和抽氣管路;
所述房體為兩側面和頂面構成的三面包圍體,所述房體的前后兩面安裝有軟門簾,所述抽氣管路的抽氣口位于所述房體內。
較佳地,所述混料系統包括框架、攪拌罐、砂料定量罐和粉料定量罐,所述攪拌罐固定與所述框架中部,所述砂料定量罐和粉料定量罐均固定于所述攪拌罐的上方;所述砂料定量罐的底部通過管路連通于所述攪拌罐;
所述粉料定量罐的底部安裝有定量螺桿輸送機,所述定量螺桿輸送機呈水平設置,所述定量螺桿輸送機的進料口固定于所述粉料定量罐底部,所述定量螺桿輸送機的出料端連通于所述攪拌罐;
還包括氣力輸送裝置,所述砂料定量罐由輸送帶送料,所述氣力輸送裝置將粉料輸送到所述粉料定量罐。
進一步地,所述樹脂輸送裝置包括樹脂攪拌罐和樹脂輸送泵,所述樹脂攪拌罐通過樹脂輸送管路將樹脂輸送到樹脂定量罐,所述樹脂輸送泵安裝于所述樹脂輸送管路。
進一步地,所述原料定量裝置包括支架、裝料桶、稱重裝置、螺旋輸送機和載料罐;
所述載料罐位于所述螺旋輸送機中部的上方,所述載料罐位于頂部呈倒立形狀;
所述裝料桶位于所述螺旋輸送機一端的下方,所述裝料桶呈垂直狀態;所述螺旋輸送機的進料口與所述載料罐的開口連接,所述螺旋輸送機的出料口與所述裝料桶連接;
所述裝料桶周圍的側壁通過稱重裝置安裝于所述支架的上方;
所述螺旋輸送機呈水平布置的,所述螺旋輸送機與所述載料罐是通過安裝法蘭的方式固定連接,所述裝料桶與所述螺旋輸送機是通過管路連通;所述載料罐與所述螺旋輸送機的接口呈橢圓形,所述接口的面積小于所述螺旋輸送機,所述接口的長度超過螺旋輸送機的長度的五分之二,不超過螺旋輸送機長度的五分之三。
進一步地,還包括氣動碟閥;
所述連通管路的兩端分別連通于所述螺旋輸送機的出料口和所述裝料桶的頂端,所述螺旋輸送機與所述裝料桶連接的管道上設置了一個氣動碟閥。
較佳地,所述載料罐的底部和所述裝料桶的底部都呈漏斗形狀。
較佳地,所述載料罐的頂部設有入口,所述載料罐頂部的入口設有蓋板。
本實用新型的有益效果:1、本方案提供的裝置可以通過天車向原料定量裝置內灌裝原料,這是基于原料定量裝置的結構開發的裝置,通過設置天車、電葫蘆和上料料斗,使原料定量裝置的上料通過電葫蘆進行提升,減少了工作人員的勞動強度;本方案通過設置混料系統,使原料的定量及混料功能銜接在一起,工作人員僅需要保證原料的供應和混成料的收取,降低了工作人員的勞動量,樹脂輸送裝置作為漿料中的樹脂基材提升裝置,這樣在混合大量漿料的時候,可以降低工人的勞動量,提高了制漿的效率;2、抑塵房的設置,限制了原料定量裝置在出料時塵土彌漫的范圍,并且在這個范圍內還設置了抽氣管路,抽氣管路用于將彌漫的灰塵抽走,這樣能夠保證工作區域的工作環境。
附圖說明

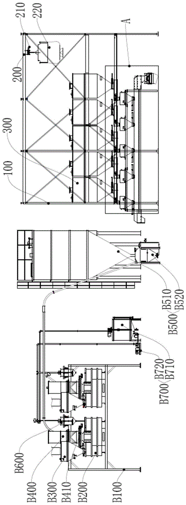
其中:支撐架100、天車200、電葫蘆210、上料料斗220、原料定量裝置300、載料罐310、螺旋輸送機320、裝料桶330、稱重裝置340、支架350、氣動碟閥360、抑塵房A、包括房體A100、軟門簾A200、抽氣管路A300、框架B100、攪拌罐B200、砂料定量罐B300、粉料定量罐B400、定量螺桿輸送機B410、氣力輸送裝置B500、粉料儲存罐B510、氣力輸送泵B520、樹脂定量罐B600、樹脂輸送裝置B700、樹脂攪拌罐B710、樹脂輸送泵B720。
具體實施方式
下面結合附圖并通過具體實施方式來進一步說明本實用新型的技術方案。
如圖1-3所示,一種用于生產石英石板材的樹脂混合配料生產線,包括支撐架100,還包括天車200、電葫蘆210、上料料斗220、原料定量裝置300和制漿系統;
所述原料定量裝置300的兩側分別設有支撐架100,所述天車200的兩端分別滑動安裝于兩側的支撐架100,所述支撐架100的頂端設有導軌;
所述電葫蘆210滑動安裝于所述天車200,所述上料料斗220固定于所述電葫蘆210的繩索;
所述天車200沿X軸方向線性移動,所述電葫蘆210沿Y方向線性移動;
所述原料定量裝置300的頂部為載料罐,所述載料罐310頂部設有進料口,所述原料定量裝置300設有多個,多個所述原料定量裝置300下方設有輸送帶,所述輸送帶的出料端連接與所述制漿系統;
所述制漿系統設置于所述支撐架100的側面,所述制漿系統包括樹脂輸送裝置B700,所述樹脂輸送裝置B700將樹脂輸送到制漿系統;
所述原料定量裝置300設置于所述抑塵房A中,所述載料罐310的上部穿過抑塵房A的頂部。
本方案提供的裝置可以通過天車向原料定量裝置300內灌裝原料,這是基于原料定量裝置的結構開發的裝置,通過設置天車200、電葫蘆和上料料斗,使原料定量裝置300的上料通過電葫蘆210進行提升,減少了工作人員的勞動強度;本方案通過設置混料系統,使原料的定量及混料功能銜接在一起,工作人員僅需要保證原料的供應和混成料的收取,降低了工作人員的勞動量,樹脂輸送裝置B700作為漿料中的樹脂基材提升裝置,這樣在混合大量漿料的時候,可以降低工人的勞動量,提高了制漿的效率。
其中,所述抑塵房A包括房體A100、軟門簾A200和抽氣管路A300;
所述房體A100為兩側面和頂面構成的三面包圍體,所述房體A100的前后兩面安裝有軟門簾A200,所述抽氣管路的抽氣口位于所述房體A100內。
抑塵房A的設置,限制了原料定量裝置300在出料時塵土彌漫的范圍,并且在這個范圍內還設置了抽氣管路A300,抽氣管路A300用于將彌漫的灰塵抽走,這樣能夠保證工作區域的工作環境。
此外,所述混料系統包括框架B100、攪拌罐B200、砂料定量罐B300和粉料定量罐B400,所述攪拌罐B200固定與所述框架B100中部,所述砂料定量罐B300和粉料定量罐B400均固定于所述攪拌罐B200的上方;所述砂料定量罐B300的底部通過管路連通于所述攪拌罐B200;
所述粉料定量罐B400的底部安裝有定量螺桿輸送機B410,所述定量螺桿輸送機B410呈水平設置,所述定量螺桿輸送機B410的進料口固定于所述粉料定量罐B400底部,所述定量螺桿輸送機B410的出料端連通于所述攪拌罐B200;
還包括氣力輸送裝置B500,所述砂料定量罐B300由輸送帶送料,所述氣力輸送裝置B500將粉料輸送到所述粉料定量罐B400。
攪拌罐B200用于將砂料定量罐B300和粉料定量罐B400中的物料進行攪拌,本方案中的砂料定量罐B300和粉料定量罐B400放置于攪拌罐B200的上方,這樣的構造使得物料能通過自身重力落到攪拌罐B200,采用了輸送帶和氣力輸送裝置B500作為物料提升裝置,這樣在混合大量物料的時候,能降低工人的勞動量,并且提高了混料的效率。
此外,所述樹脂輸送裝置B700包括樹脂攪拌罐B710和樹脂輸送泵B720,所述樹脂攪拌罐B710通過樹脂輸送管路將樹脂輸送到樹脂定量罐B600,所述樹脂輸送泵B720安裝于所述樹脂輸送管路。
樹脂在未凝固時為液態,通過攪拌罐儲存時可以保證樹脂的均勻度,在輸送時采用管路和泵的結合,使樹脂的輸送處于密封狀態,不會被雜質污染,當然,這種輸送方式也有很方便省力的效果。
此外,所述原料定量裝置300包括支架350、裝料桶330、稱重裝置340、螺旋輸送機320和載料罐310;
所述載料罐310位于所述螺旋輸送機320中部的上方,所述載料罐310位于頂部呈倒立形狀;
所述裝料桶330位于所述螺旋輸送機320一端的下方,所述裝料桶330呈垂直狀態;所述螺旋輸送機320的進料口與所述載料罐310的開口連接,所述螺旋輸送機320的出料口與所述裝料桶330連接;
所述裝料桶周圍的側壁通過稱重裝置340安裝于所述支架350的上方;

所述螺旋輸送機320呈水平布置的,所述螺旋輸送機320與所述載料罐310是通過安裝法蘭的方式固定連接,所述裝料桶330與所述螺旋輸送機320是通過管路連通;所述載料罐310與所述螺旋輸送機320的接口呈橢圓形,所述接口的面積小于所述螺旋輸送機320,所述接口的長度超過螺旋輸送機320的長度的五分之二,不超過螺旋輸送機320長度的五分之三。
法蘭安裝的好處在于便于拆卸,當載料罐1或者螺旋輸送機2遭到損壞的時候可以輕松的將其拆卸下來更換或者維修,有利于螺旋輸送機2與載料罐1的保養,又能減少拆卸時間;本方案的螺旋輸送機320和載料罐的接口處較大,使螺旋輸送機
此外,還包括氣動碟閥360;
所述連通管路的兩端分別連通于所述螺旋輸送機320的出料口和所述裝料桶330的頂端,所述螺旋輸送機320與所述裝料桶330連接的管道上設置了一個氣動碟閥360。
氣動碟閥360可以控制螺旋輸送機320輸送物料到裝料桶330的流量,當裝料桶330內的物料達到所規定的重量時,可關閉氣動碟閥360使螺旋輸送機320停止對裝料桶330的運輸,這樣在生產過程中比較方便。
其中,所述載料罐310的底部和所述裝料桶330的底部都呈漏斗形狀。
底部都呈漏斗狀,便于物料的集中,進而使罐內的物料能夠全部被輸送出來。
其中,所述載料罐310的頂部設有入口,所述載料罐310頂部的入口設有蓋板。
載料罐310設置入口,有利于設備的維護,可以使工作人員進入到罐內。
遠東泵業30多年來一直堅持為客戶創造價值!
我們在努力了解您的需求,遠東泵業提供給您的不僅僅是產品,還有的流體輸送解決方案。為你解決流體輸送的難題,讓你省心又省力!如果有任何關于流體輸送泵的疑問,請立即撥打遠東泵業免費咨詢熱線:020-82375311,我們會為您提供貼心的服務!
全國服務熱線:020-82375311
聯系電話:020-82375311
傳真:020-82386622
聯系QQ:2853715911
公司地址:廣州市黃埔區黃埔東路621號
【本文標簽】:石英石樹脂卸車泵 石英石專用樹脂輸送泵 樹脂輸送泵廠家
【責任編輯】:遠東泵業 版權所有:http://m.axnkx.cn/轉載請注明出處